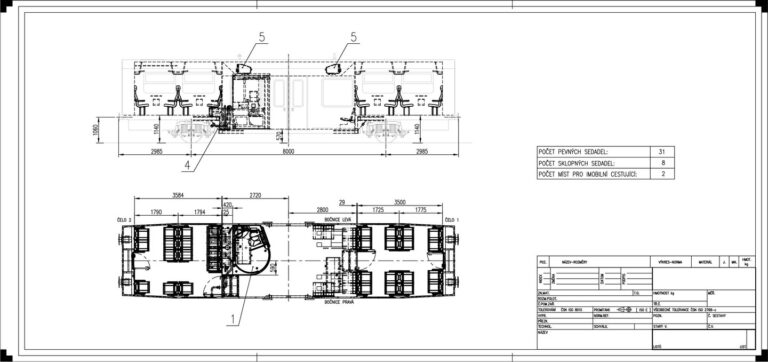
Dokumentace pro rekonstrukci motorových vozů 810 a 814

Konstrukční činnost:
Dokumentace
Poznámka:
Dokumentace pro rekonstrukci motorových vozů 810 na 814 – 914 a 814 na 014 a 914
Rok realizace:
2006 – 2007
Zakázník:
Pars nova a.s.
Galerie:
Soubory ke stažení:

Výkres01.pdf [3 MB]

Výkres02.pdf [7 MB]