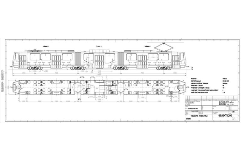
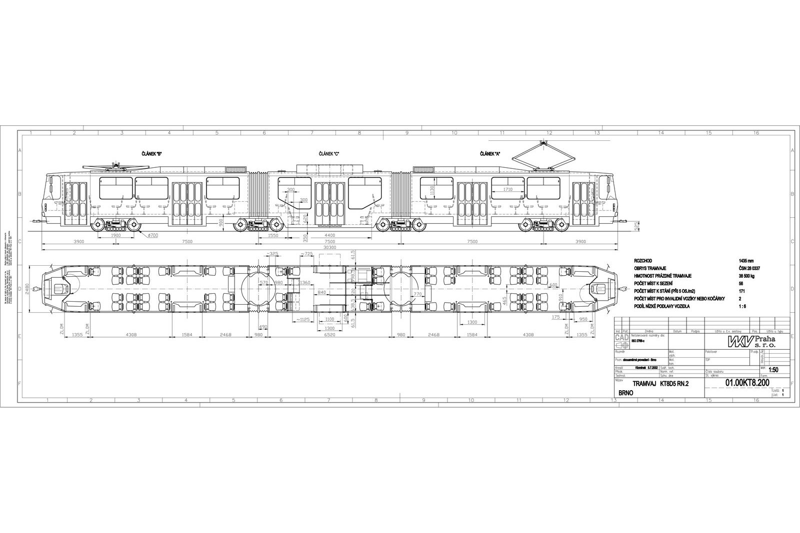
Tramvaje KT8D5.RN2 – Brněnský a Košický dopravní podnik

Konstrukční činnost:
Vývoj a výrobní dokumentace
Rok realizace:
2002
Zakázník:
Pragoimex a.s.
Galerie:
Soubory ke stažení:

Výkres01.pdf [3 MB]

Výkres02.pdf [7 MB]